产品中心 / Product
日立玛钢旋启式法兰止回阀 M10KFCS
日立玛钢旋启式法兰止回阀 M10KFCS

主要零件材料

            

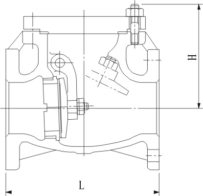
主要外形尺寸

温度压力范围